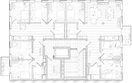
Wohnen und Arbeiten im Wedding
Errichtung zweier Hofgebäude, Sanierung des Bestandsgebäudes
Konstruktionsart: modulare Holzbauweise – Pfosten-Riegel
Geschossgkeit: 7 und 6 Vollgeschosse
Nutzung: Co-Living, Gastronomie, Co-Working
Raumprogramm: 36 Wohnungen, 100 Zimmer,
2 Co-Working Einheiten, 1 Gastronomie
Status: Fertiggestellt 2019












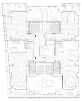
Wohnen und Arbeiten in Neukölln
Errichtung eines Vorder- und Gartenhauses
Konstruktionsart: modulare Holzbauweise
Geschossgkeit: 6 Vollgeschosse, 4 Vollgeschosse
Nutzung: Wohnen, Co-Working
Raumprogramm: 14 Wohnungen, 1 Co-Working
Status: Fertiggestellung 2021







Wohnen am Wasser
Errichtung zweier Wohnhäuser
Konstruktionsart: Massivbauweise
Geschossigkeit: 5 Vollgeschosse
Nutzung: Wohnen
Raumprogramm: 36 Wohnungen, Tiefgarage
Status: Fertiggestellung 2022




Wohnen am Landschaftsschutzgebiet
Errichtung eines Einfamilienhauses in Holzbauweise
Konstruktionsart: modularer Holzrahmenbau
Geschossgkeit: 2 Vollgeschosse
Status: Fertiggestellung 2021







Wohnen am Viktoriapark
Errichtung eines Seitenflügels, Aufstockung im Bestand
Konstruktionsart: modulare Holzmassivbauweise
Geschossgkeit: 8 Vollgeschosse
Nutzung: Wohnen, Co-Working
Raumprogramm: 7 Wohnungen, 1 Co-Working
Status: Fertiggestellung 2021



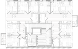
Wohnen und Arbeiten im Wedding
Errichtung zweier Hofgebäude in Holzbauweise
Geschossigkeit: 7 und 6 Vollgeschosse
Status: Fertiggestellt 2019












Wohnen und Arbeiten in Neukölln -
Errichtung eines Vorder- und Gartenhauses
Geschossgkeit: 6 und 4 Vollgeschosse
Status: Fertiggestellung 2021







Wohnen am Wasser
Errichtung zweier Wohnhäuser
Konstruktionsart: Massivbauweise
Geschossigkeit: 5 Vollgeschosse
Status: Fertiggestellung 2022




Wohnen am Landschaftsschutzgebiet -
Errichtung eines Einfamilienhauses in Holzbauweise
Status: Fertiggestellung 2021







Wohnen am Viktoriapark -
Errichtung eines Seitenflügels,
Aufstockung im Bestand
Geschossigkeit: 8 Vollgeschosse
Status: Fertiggestellung 2021


